
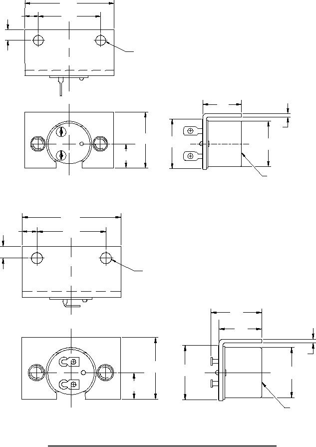
MIL-PRF-24236/1P
1.28
MAX
.19
.880
± .02
± .010
.15
± .02
2X Ø.140
± .005
.45
± .02
.05
± .02
.790
Ø.70
± .010
Ø.64
MAX
MAX
.340
± .010
TEMPERATURE
SENSING
Configuration A8
SURFACE
Weight .05 pound Maximum
1.28
MAX
.19
.880
± .02
± .010
.15
± .02
2X Ø.140
± .005
.65
MAX
.45
± .02
.05
± .02
.790
Ø.70
± .010
Ø.64
MAX
MAX
.340
± .010
TEMPERATURE
Configuration B9
SENSING
SURFACE
Weight .05 pound Maximum
FIGURE 1. Switches, thermostatic, (bimetallic), subminiature, type I, hermetically sealed - Continued.
10