
MIL-PRF-22885/109B
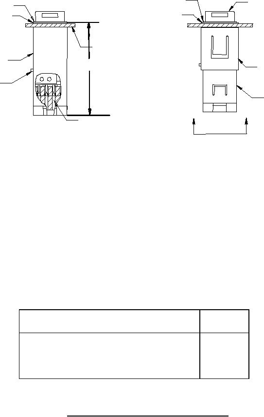
SWITCH FLANGE
PUSHBUTTON
SWITCH FLANGE
INSIDE SLEEVE FLANGE
PANEL SEAL
MOUNTING PANEL
POKE HOME
HEADER
A
OUTSIDE SLEEVE
ASSEMBLY
MOUNTING LUG
INSIDE SLEEVE
A
A
CONNECTOR MODULE SOCKET
(ACCEPTS CONTACT M39029/57-354)
DOUBLE SLEEVE POKE
SINGLE SLEEVE POKE
HOME CONNECTION
HOME CONNECTION
CATEGORY II
Inches
mm
1.90
48.3
2.20
55.9
2.50
63.5
2.80
71.1
NOTES:
1. Dimensions are in inches.
2. Metric equivalents are given for general information only.
3. See figure 8 for additional applicable notes.
Pokehome Connector type
Dimension A
inches max
Type 1 - 4 poles (accepts short push button)
2.50
Type 2 - 4 poles (accepts high efficiency push button)
2.80
Type 1 - 2 poles (accepts short push button)
1.90
Type 2 - 2 poles (accepts high efficiency push button)
2.20
FIGURE 3. Switches with Pokehome connector module termination.
3