
MIL-PRF-22710/24B
REQUIREMENTS:
Dimensions and configuration: See figures 1, 2 and 3.
Construction: D.
Angle of Throw: 36
Temperature-life characteristic: B, except -55 low temperature for all switches and +71 C for lighted
switches.
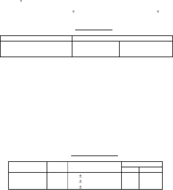
TABLE I. Electrical test load.
Test of condition
Resistive
At atmospheric pressure
0.125 A
28 V dc and ac, 60 Hz
At reduced barometric pressure
0.125 A
28 V dc and ac, 60 Hz
Life (low level)
10 mA
30 mV
Vibration grade: 3 (15g, 10 - 2,000 Hz).
Shock types: M (100 g's) and H (high-impact). Methods I and II are applicable.
Altitude rating: C (70,000 feet).
Terminal design: See figure 3 and table III.
Contact resistance:
Initial: 50 milliohms, maximum.
Following life (rotational): 70 milliohms, maximum.
Luminace: Illuminated switches only.
Moisture resistance: Method 103, test condition A, MIL-STD-202, with polarization voltage.
TABLE II. Photometric brightness.
Rating
Switch
Lamp
Brightness
filter
Volts
Ampere
Clear
5
0.115
2.0
1.0 foot-lamberts
M6363/6 or
Red
5
0.115
1.0
0.5 foot-lamberts
equivalent
Amber
5
0.115
2.0
1.0 foot-lamberts
Operating force (tangential): 12 ounces minimum
36 ounces maximum
Seal: Method II, when specified in table I.
Dielectric withstanding voltage: 750 volts rms at atmospheric pressure
250 volts rms at reduced barometric pressure, test condition C.
5