
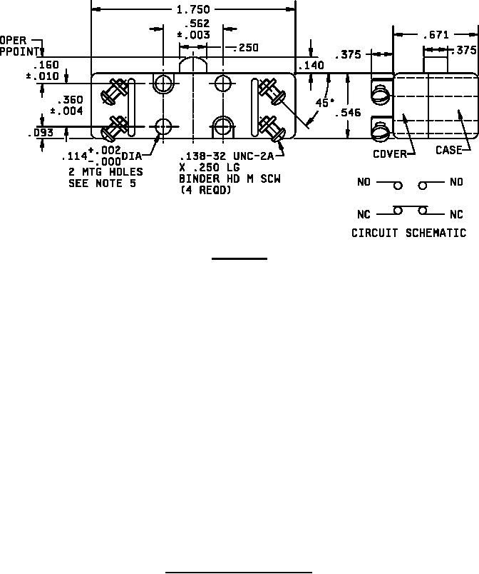
MIL-PRF-8805/19F
MS25357-2
Inches
mm
Inches
mm
.002
0.05
.250
6.35
NOTES:
1. Dimensions are in inches.
.003
0.08
.360
9.14
2. Unless otherwise stated, tolerance is ±.015 (0.38 mm).
.004
0.13
.375
9.53
3. Exact shape of switch optional provided dimensions
specified are not exceeded.
.010
0.25
.546
13.87
4. Metric equivalents are given for general information only.
.093
2.36
.562
14.27
5. Dimensions shown are case mounting holes. Cover
.105
2.67
.594
15.09
mounting holes may exceed these dimensions by .010 (.25
mm) maximum.
.114
2.90
.671
17.04
6. Application note: Strain relief should be provided for lead
.140
3.56
.875
22.23
wires within 6.000 (152.40 mm) of switch terminals.
.160
4.06
1.032
26.21
7. MS25357 was superseded by MIL-PRF-8805/19; the
MS25357 Part Numbers (PINS) were retained.
.218
5.54
1.750
44.45
.234
5.94
FIGURE 1. Dimensions and configurations (continued).
2