
MIL-PRF-22885/58H
No
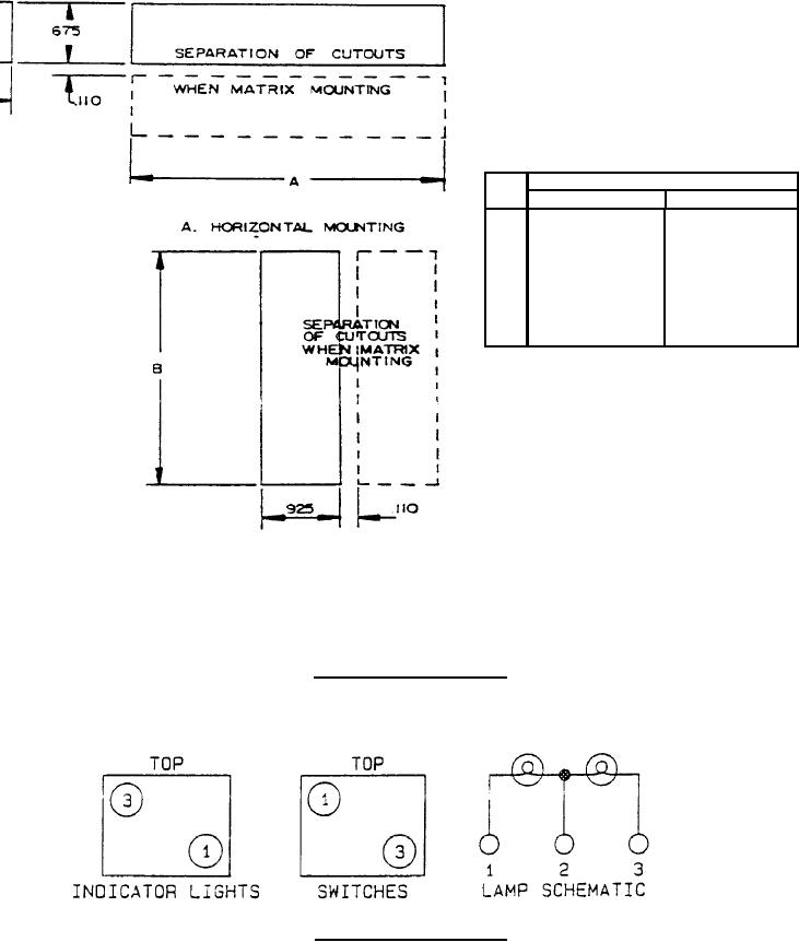
Dimensions
Units
A
B
.675 (17.14)
.925
(23.50)
1
1.425 (36.20)
1.925
(48.90)
2
2.180 (55.37)
2.930
(74.42)
3
2.935 (74.55)
3.935
(99.95)
4
3.690 (93.73)
4.940
(125.48)
5
4.445 (112.90)
5.945
(151.00)
6
5.200 (132.08)
6.950
(176.53)
7
5.955 (151.26)
7.955
(202.06)
8
B. VERTICAL MOUNTING
NOTES:
1. Dimensions are in inches.
2. Metric equivalents are given for general information only.
3. Metric equivalents are in parentheses.
4. Unless otherwise specified, the tolerance for three place decimals is ±.010 (0.25 mm).
FIGURE 2. Recommended panel outputs.
FRONT VIEW - NUMBER CORRESPONDS TO LAMP TERMINAL
FIGURE 3. Lamp position and schematic.
2
For Parts Inquires call Parts Hangar, Inc (727) 493-0744
© Copyright 2015 Integrated Publishing, Inc.
A Service Disabled Veteran Owned Small Business