
INCH-POUND
MIL-PRF-22885/58H
28 April 2004
SUPERSEDING
MIL-PRF-22885/58G
17 MARCH 1999
PERFORMANCE SPECIFICATION SHEET
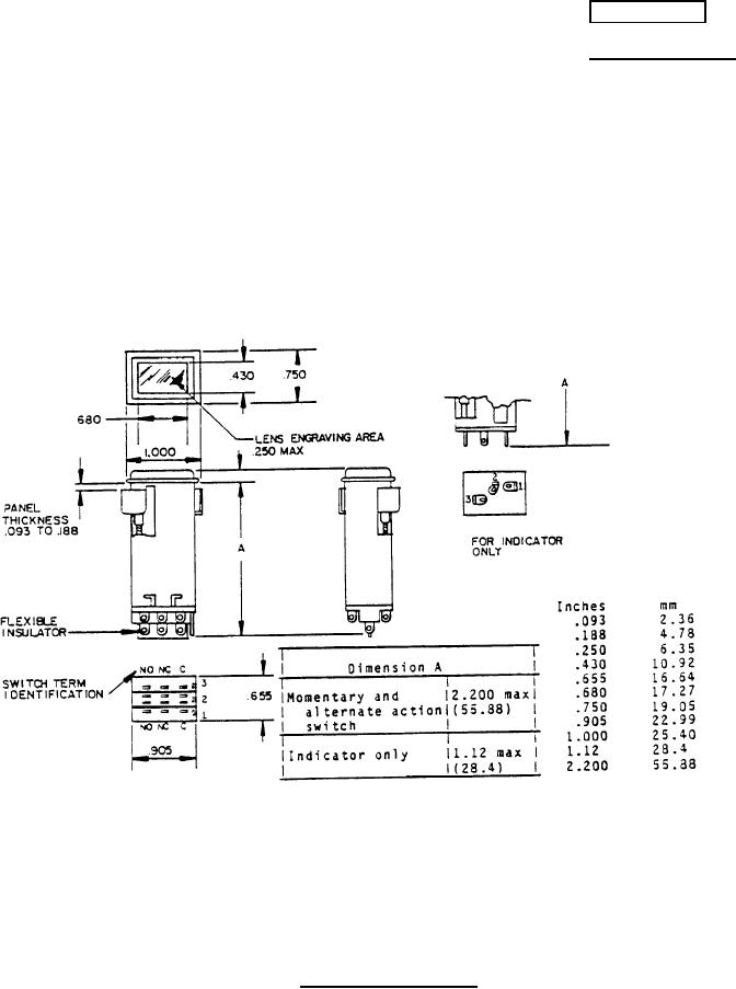
SWITCH, PUSHBUTTON, ILLUMINATED,
2-LAMP, SOLID MOUNT, 3 AMPERES, UNSEALED
This specification sheet is approved for use by all Departments
and Agencies of the Department of Defense.
The requirements for acquiring the switch described herein shall
consist of this specification sheet and MIL-PRF-22885.
NOTES:
1. Dimensions are in inches.
2. Metric equivalents are given for general information only.
3. Unless otherwise specified, tolerance is ±.010 (.25 mm).
4. On 2 PDT switches, terminals are furnished in 2 center positions only.
5. The design configuration is optional within envelope dimensions shown.
6. Terminals shall be permanently identified as shown.
FIGURE 1. Switch, 2-lamp,solid mount.
AMSC N/A
FSC 5930
For Parts Inquires call Parts Hangar, Inc (727) 493-0744
© Copyright 2015 Integrated Publishing, Inc.
A Service Disabled Veteran Owned Small Business