
MIL-PRF-22885/101E
PIN 2/
M22885/101-
or
Contact
Switch
Lamp
M22885/101E
Action
material
circuit
circuit
Terminal type
PCB
Solder
Plug-in
501
503
529
Indicator
N/A
N/A
1
502
504
530
Indicator
N/A
N/A
3
505
507
531
Momentary
Silver
SPDT
1
506
508
532
Momentary
Silver
SPDT
3
509
511
533
Momentary
Gold
SPDT
1
510
512
534
Momentary
Gold
SPDT
3
513
515
535
Momentary
Silver
DPDT
1
514
516
536
Momentary
Silver
DPDT
3
517
519
537
Momentary
Gold
DPDT
1
518
520
538
Momentary
Gold
DPDT
3
521
522
539
Alternate
Silver
SPDT
1
523
524
540
Alternate
Gold
SPDT
1
525
526
541
Alternate
Silver
DPDT
1
527
528
542
Alternate
Gold
DPDT
1
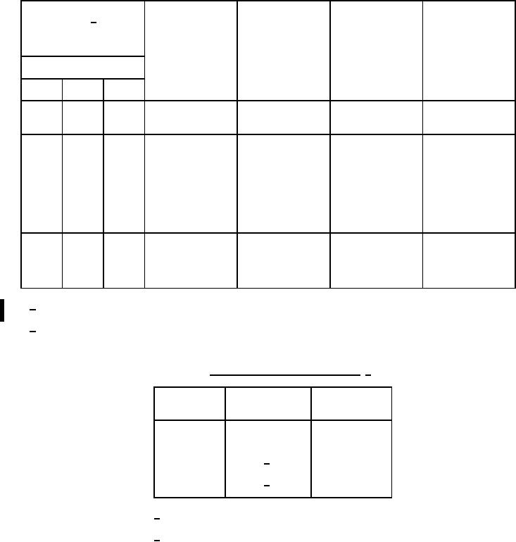
1/
These inactive PIN's define switch housings which mate with MIL-PRF-22885/102 pushbutton. Does not
include mounting sleeve, panel spacer or panel seal.
2/
Use of "E" instead of a dash indicates extended version. See figures 1 and 2.
TABLE IX. Inactive PIN's - mounting hardware. 1/
Short version
Extended version
Description
M22885/101-
M22885/101-
543
543
Mounting sleeve
2/
544
Panel spacer
2/
545
Panel seal
1/ These inactive PIN's define mounting hardware
for switch housings of table VIII.
2/ Extended version uses same panel spacer and
panel seal as short version.
14
For Parts Inquires call Parts Hangar, Inc (727) 493-0744
© Copyright 2015 Integrated Publishing, Inc.
A Service Disabled Veteran Owned Small Business