
INCH-POUND
MIL-PRF-22710/15H
20 April 2001
SUPERSEDING
MIL-S-22710/15G
29 March 1985
PERFORMANCE SPECIFICATION SHEET
SWITCHES, CODE INDICATING WHEEL (PRINTED CIRCUIT),
(THUMBWHEEEL SWITCH ASSEMBLY, SEALED MODULES, ILLUMINATED OR
NON-ILLUMINATED), (TOP, BOTTOM OR REAR RELAMPABLE),
STYLE SRPC15
This specification is approved for use by all Departments and Agencies of the Department of Defense.
The requirements for acquiring the product described herein shall consist of this specification sheet and
the issue of MIL-PRF-22710 listed in that issue of the Department of Defense Index of Specifications and
Standards (DODISS) specified in the solicitation.
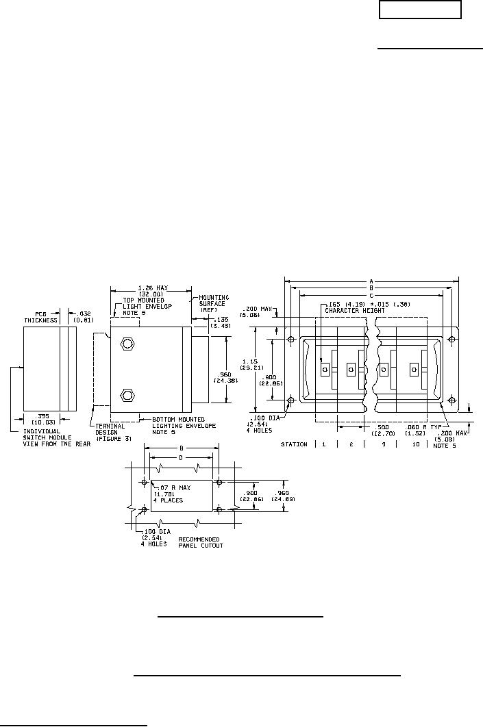
RECOMMENDED PANEL CUTOUT
FIGURE 1. Style SRPC15 switch and panel cutout (unshielded switch)
AMSC N/A
1 of 34
FSC 5930
DISTRIBUTION STATEMENT A. Approved for public release; distribution is unlimited.