
MIL-DTL-9395/39D
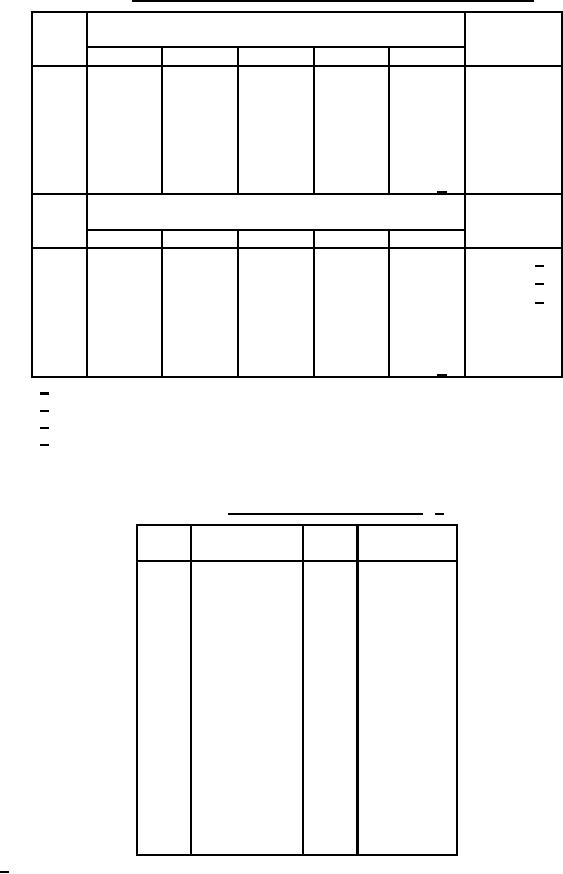
TABLE III. Codes for combinations of fine settings and tolerance values.
2
Fine value (lbf/in ) for
Tolerance
2
settings below 20 lbf/in
2
(lbf/in )
0
0.5
1
1.5
2
±0.25
Code
A
B
C
D
E
±0.5
Code
F
G
H
J
K
±1.0
Code
L
M
N
P
Q
±1.5
Code
R
S
T
U
V
±2.0
Code
W
X
Y
Z
1
±2.5
Code
2
3
4
5
6
Code
7
8
9
0
- 4/
Min or Max
2
Fine value (lbf/in ) for settings
Tolerance
2
of 20 lbf/in and above
2
(lbf/in )
0
1
2
3
4
±1.0 1/
Code
A
B
C
D
E
±2.0 2/
Code
F
G
H
J
K
±3.0 3/
Code
L
M
N
P
Q
±4.0
Code
R
S
T
U
V
±5.0
Code
W
X
Y
Z
1
±6.0
Code
2
3
4
5
6
Code
7
8
9
0
- 4/
Min or Max
2
1/ Not applicable for pressure settings above 33 lbf/in .
2
2/ Not applicable for pressure settings above 66 lbf/in .
2
3/ Not applicable for pressure settings above 100 lbf/in .
4/ A dash (-) is used as the code character for these fine setting and tolerance
values.
TABLE IV. Codes for differential settings. 1/
Differential
Differential
Code
Code
2
2
value (lbf/in )
value (lbf/in )
A
0
T
11
B
0.5
U
12
C
1
V
13
D
1.5
W
14
E
2
X
15
F
2.5
Y
16
G
3
Z
18
H
3.5
1
20
J
4
2
22
K
4.5
3
24
L
5
4
26
M
5.5
5
28
N
6
6
30
P
7
7
35
Q
8
8
40
R
9
9
45
S
10
0
50
1/ Differential settings require two codes, minimum differential and maximum differential.
5
For Parts Inquires call Parts Hangar, Inc (727) 493-0744
© Copyright 2015 Integrated Publishing, Inc.
A Service Disabled Veteran Owned Small Business