
MIL-DTL-9395/39D
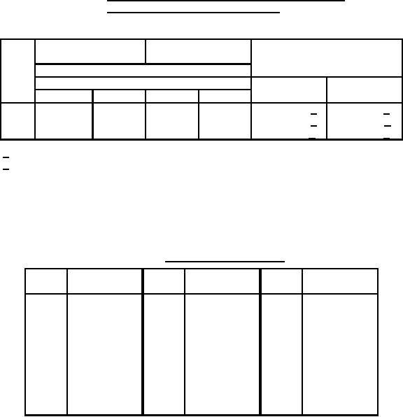
TABLE I. Codes for combinations of configurations, electrical
ratings, and pressure settings modes.
Low Level to 1 ampere
1.5 to 5 amperes
resistive at 28 Vdc
at 28 Vdc
Pressure setting mode
Configuration 1
Electrical chamber
High pressure
Low pressure
Hermetic Unsealed Hermetic Unsealed
Code
A
D
G
K
At (or max) 1/ At (or min) 1/
Code
B
E
H
L
At (or max) 1/ Differential 2/
Code
C
F
J
M
Differential 2/ At (or min) 1/
1/ Setting values are designated by codes from table II and III.
2/ Setting values are designated by codes from table IV.
TABLE II. Codes for coarse settings.
Coarse value
Coarse value
Coarse value
Code
Code
Code
2
2
2
(lbf/in )
(lbf/in )
(lbf/in )
A
0
L
30
W
80
B
2.5
M
35
X
85
C
5
N
40
Y
90
D
7.5
P
45
Z
95
E
10
Q
50
1
100
F
12.5
R
55
2
105
G
15
S
60
3
110
H
17.5
T
65
4
115
J
20
U
70
5
120
K
25
V
75
6
125
4
For Parts Inquires call Parts Hangar, Inc (727) 493-0744
© Copyright 2015 Integrated Publishing, Inc.
A Service Disabled Veteran Owned Small Business