
MIL-DTL-15291/5B
NOTE: Finish shall be zinc and dichromate, ASTM B 633.
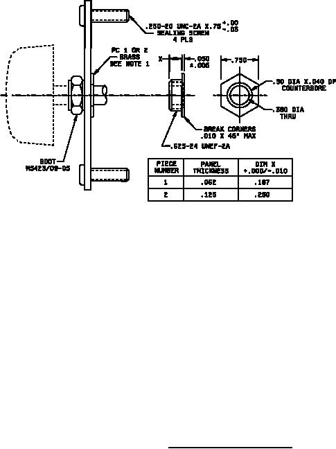
FIGURE 5. Kit for panel seal mounting.
8
For Parts Inquires call Parts Hangar, Inc (727) 493-0744
© Copyright 2015 Integrated Publishing, Inc.
A Service Disabled Veteran Owned Small Business