
INCH-POUND
MIL-PRF-8805/8H
6 December 2012
SUPERSEDING
MIL-PRF-8805/8G
10 April 2006
PERFORMANCE SPECIFICATION SHEET
SWITCHES, SENSITIVE, SPDT, LEAF ACTUATOR,
LOW LEVEL TO 4 AMPERES, HERMETIC SEAL
This specification is approved for use by all Departments and Agencies of the Department of Defense.
The complete requirements for acquiring the switch described herein shall consist of this specification and
the latest issue of MIL-PRF-8805.
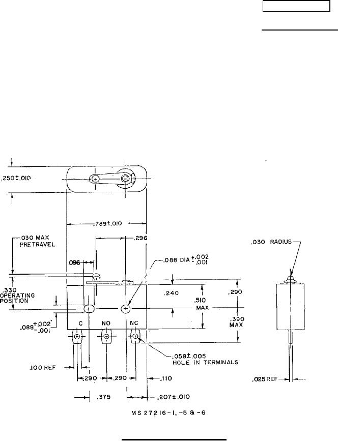
FIGURE 1. Dimensions and configurations.
AMSC N/A
FSC 5930
For Parts Inquires call Parts Hangar, Inc (727) 493-0744
© Copyright 2015 Integrated Publishing, Inc.
A Service Disabled Veteran Owned Small Business