
MIL-PRF-8805/32J
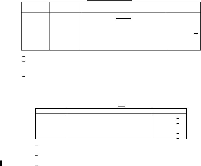
TABLE II. Qualification inspection - continued.
Switches for
Number of
Examination or test
Extent of
testing
sample units
approval
Group I
Visual and mechanical examination
Insulation resistance
MS27994-3 3/
MS27994-3
2
Operating characteristics
Terminal strength
Dielectric withstanding voltage
Solderability
1/ Two sample units only.
2/ Seal level dielectric withstanding voltage test is to be conducted only on those units which
were tested for sea level electrical endurance. Altitude dielectric withstanding voltage test is to
be conducted on those units which were tested for altitude electrical endurance tests.
3/ Applies only if MS27994-4 is qualified.
TABLE III. PIN.
PIN
Contact
Termination
MS27994-1
Silver
Wire leads 1/
MS27994-2
Gold filled or diffused
Wire leads 2/
MS27994-3
Silver
Turret terminals
MS27994-4
Silver
Wire leads 3/
MS27994-5
Gold filled or diffused
Wire leads 3/
1/ NEMA HP3, MIL-W-22759/11 or equivalent wire leads. Inactive for new design. Use
MS27994-4.
2/ NEMA HP3, MIL-W-22759/11 or equivalent wire leads. Inactive for new design. Use
MS27994-5.
3/ SAE-AS22759/11 or equivalent wire leads.
5
For Parts Inquires call Parts Hangar, Inc (727) 493-0744
© Copyright 2015 Integrated Publishing, Inc.
A Service Disabled Veteran Owned Small Business