
INCH-POUND
MIL-PRF-8805/17G
4 October 2004
SUPERSEDING
MIL-PRF-8805/17F
3 September 1999
PERFORMANCE SPECIFICATION SHEET
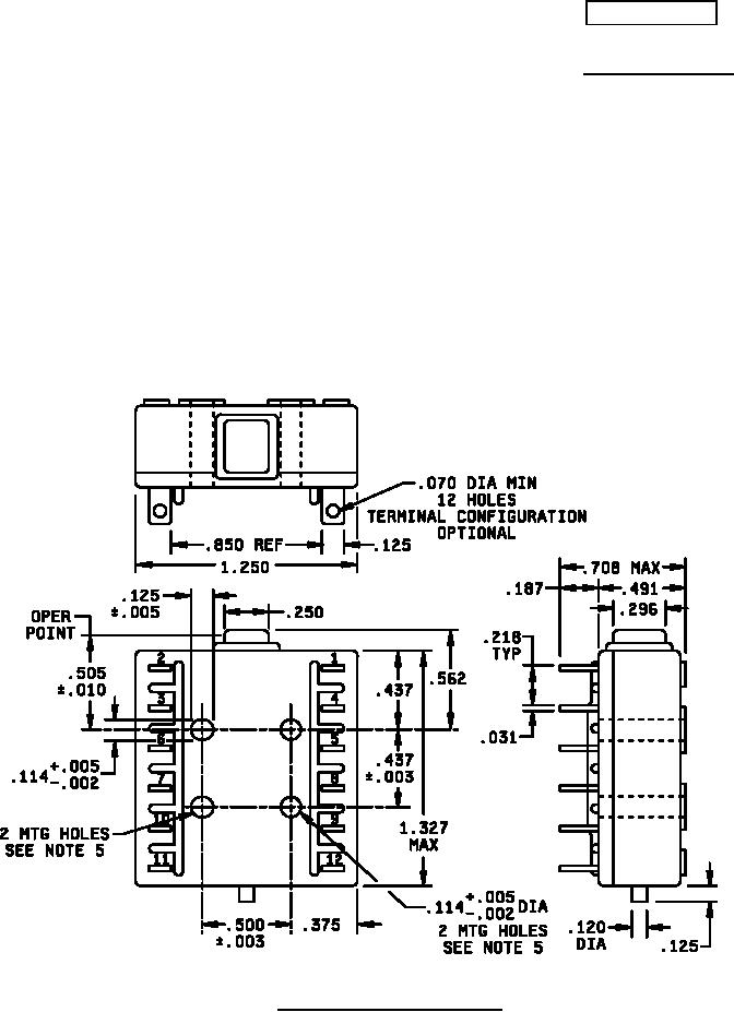
SWITCHES, SENSITIVE-MAINTAINED, 6 CIRCUIT, 15 AMPERES, UNSEALED
This specification is approved for use by all Depart-
ments and Agencies of the Department of Defense.
The complete requirements for acquiring the switches described herein
shall consist of this specification and the latest issue of MIL-PRF-8805.
FIGURE 1. Dimensions and configurations.
AMSC N/A
FSC 5930
For Parts Inquires call Parts Hangar, Inc (727) 493-0744
© Copyright 2015 Integrated Publishing, Inc.
A Service Disabled Veteran Owned Small Business