
MIL-PRF-8805/100G
Keyway Detail
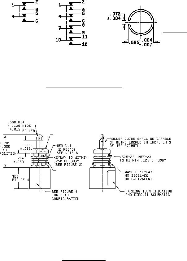
2PDT
M8805/100-001,-002,-003,-004,
-005,-006,-011,-012,-013&-014
4PDT
M8805/100-007,-008,-009,
-010,-015,-016,-017 1.
NOTES:
1. Dimensions are in inches.
2. Metric equivalents are given for general information only.
FIGURE 2. Circuit schematic and keyway details.
AZIMUTH ADJUST NUT
NASM 21392 or
EQUIVALENT
LOCKWASHER
NASM 35333-80
or EQUIVALENT
NOTES:
1. Dimensions are in inches.
2. Unless otherwise specified, tolerances are ±.010 (.25 mm) for two place decimals and
±.005 (.127 mm) for three place decimals.
3. Metric equivalents are given for general information only.
4. Contour optional provided maximum dimensions specified are not exceeded.
5. The marking (identification and circuit schematic) shall be permanently and legibly marked
on the switch case in the location shown (on side of body opposite keyway).
6. Hex nut shall be MS21340-05 or equivalent.
FIGURE 3. Roller plunger switch.
2
For Parts Inquires call Parts Hangar, Inc (727) 493-0744
© Copyright 2015 Integrated Publishing, Inc.
A Service Disabled Veteran Owned Small Business