
INCH-POUND
MIL-PRF-83504/12B
23 February 2001
SUPERSEDING
MIL-PRF-83504/12A(USAF)
3 NOVEMBER 1989
PERFORMANCE SPECIFICATION SHEET
SWITCHES, DUAL IN-LINE PACKAGE (DIP), RECESSED SLIDE
ACTUATED, SINGLE POLE, SINGLE THROW STATIONS,
SEALED BASE, MACHINE INSERTABLE
This specification is approved for use by all Depart-
ments and Agencies of the Department of Defense.
The requirements for acquiring the product described herein shall consist
of this specification sheet and the issue of the following specification
listed in that issue of the Department of Defense Index of Specifications
and Standards (DODISS) specified in the solicitation: MIL-PRF-83504.
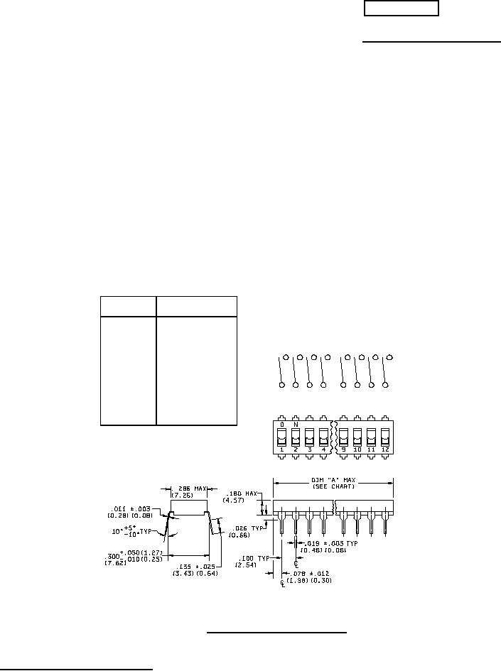
Number
Dimension
of stations
"A" inches max.
CIRCUIT DIAGRAM
2
.280
(7.11)
3
.380
(9.65)
AS VIEWED FROM THE TOP OF THE
4
.480
(12.19)
SWITCH IN THE POSITION SHOWN.
5
.580
(14.73)
6
.680
(17.27)
7
.780
(19.81)
8
.880
(22.35)
9
.980
(24.89)
10
1.080
(27.43)
11
1.180
(29.97)
12
1.280
(32.51)
See notes next page
FIGURE 1. Dimensions and configuration.
AMSC N/A
1 of 3
FSC 5930
DISTRIBUTION STATEMENT A. Approved for public release; distribution is unlimited.