
INCH-POUND
MIL-PRF-22885/96D
19 April 2010
SUPERSEDING
MIL-PRF-22885/96C
2 April 2004
PERFORMANCE SPECIFICATION SHEET
SWITCHES, PUSHBUTTON, ILLUMINATED,
4-LAMP, RFI SHIELDED
INACTIVE FOR NEW DESIGN AS OF 15 JANUARY 1999
This specification sheet is approved for use by all Departments and Agencies of the Department of Defense.
The requirements for acquiring the product described herein shall consist of this specification sheet and MIL-PRF-22885.
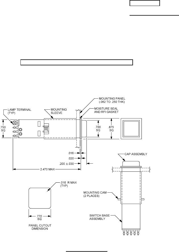
FIGURE 1. Design and construction.
AMSC N/A
FSC 5930
For Parts Inquires call Parts Hangar, Inc (727) 493-0744
© Copyright 2015 Integrated Publishing, Inc.
A Service Disabled Veteran Owned Small Business