
INCH-POUND
MIL-PRF-22885/77E
25 April 2013
SUPERSEDING
MIL-PRF-22885/77D
1 March 2001
PERFORMANCE SPECIFICATION SHEET
SWITCHES, PUSH BUTTON, ILLUMINATED,
4-LAMP, 0.75 SQUARE, 7.5 AMPERES,
AND LOW LEVEL INTEGRATED WIRE TERMINATION, ELECTROMAGNETIC
INTERFERENCE SHIELDED, SUNLIGHT READABLE
This specification is approved for use by all Departments and Agencies of the Department of Defense.
The requirements for acquiring the indicator lights described herein shall consist of this specification
sheet and MIL-PRF-22885.
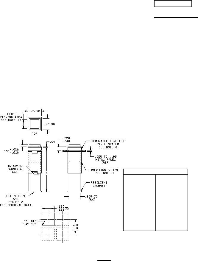
Dimension A
Momentary
2.95 max
Maintained
depressed
2.95 max
Magnetic
holding
3.56 max
Indicator
light
2.26 max
FIGURE 1. Switch.
AMSC N/A
FSC 5930
For Parts Inquires call Parts Hangar, Inc (727) 493-0744
© Copyright 2015 Integrated Publishing, Inc.
A Service Disabled Veteran Owned Small Business