
INCH POUND
MIL-PRF-22885/75E
1 March 2001
SUPERSEDING
MIL-PRF-22885/75D
25 July 1990
PERFORMANCE SPECIFICATION SHEET
SWITCHES, PUSH BUTTON, ILLUMINATED,
4-LAMP, 0.87 SQUARE, 7 AMPERES,
ELECTROMAGNETIC INTERFERENCE SHIELDED
This specification sheet is approved for use by all Departments
and Agencies of the Department of Defense.
The requirements for acquiring the indicator lights described herein shall
consist of this specification sheet and MIL-PRF-22885.
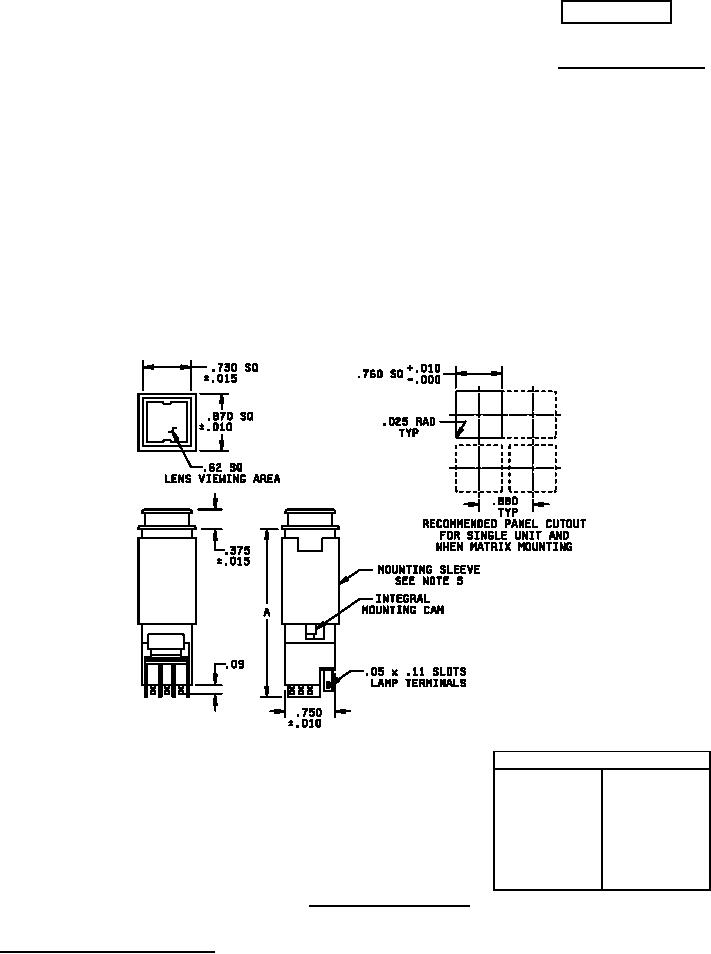
Dimension A
Momentary
2.750 max
Alternate
2.750 max
Indicator
1.906 max
light
FIGURE 1. Design and construction.
AMSC N/A
Page 1 of 10
FSC 5930
DISTRIBUTION STATEMENT A. Approved for public release; distribution is unlimited.