
MIL-PRF-22885/71C
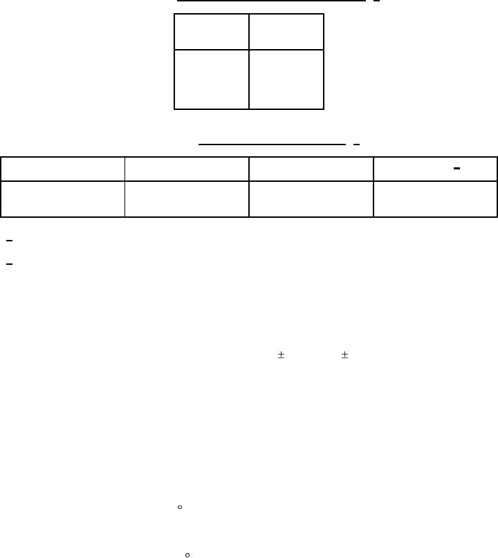
TABLE III. 28 V dc electrical ratings (silver contacts). 1/
Load
Amperes
Resistive
7
Inductive
4
TABLE IV. Electrical ratings (gold contacts). 1/
Load
Power circuit
Electronic logic
Low level 2/
30 millivolts
28 V dc
circuit 5 V dc
amperes
amperes
amperes
Resistive
1.0
0.01
0.01 maximum
Inductive
0.5
---
---
1/ Gold contacts: Contacts in which the mating surfaces are gold or gold alloy throughout the rated life of
the switch.
2/ 30 millivolts maximum dc or peak ac.
Low level life: Applicable to gold contact switches, 50,000 cycles.
Electronic logic circuit: Applicable to gold contact switches. 50,000 cycles at an actuation rate of 120
cycles per minute maximum with no "stick" or "misses" allowed when tested in accordance with
ANSI/EIA RS448, method 17 as follows:
Each pair of switch contacts shall be tested using a 5.0 0.5 V dc, 10 1 mA resistive load. During
each closure of the contacts, the voltage drop across the switch terminals shall be monitored until 10
milliseconds after the initial contact closure to exclude any contact bounce. during each opening of
the contacts, the voltage drop across the switch terminals shall be monitored for a duration of no less
than 50 percent of each contact opening.
A voltage of 2.1 volts or greater across the switch terminals shall constitute a contact "miss" (failure to
properly close the circuit). A voltage drop of less than 90 percent of the open-circuit voltage shall
constitute a contact "stick" (failure to properly open the circuit).
The monitoring device shall either record the number of contact closures at which "sticks" or "misses"
occur, or discontinue the test when "sticks" or "misses" occur.
25 percent of the test cycle at -55 C.
25 percent of the test at room ambient conditions.
50 percent of the test cycles at +55 C.
Shock: MIL-STD-202, method 213, test condition A (50 g's, half sine).
5