
INCH-POUND
MIL-PRF-22885/67J
21 March 2013
SUPERSEDING
MIL-PRF-22885/67H
15 January 2005
PERFORMANCE SPECIFICATION SHEET
SWITCHES, PUSH BUTTON, ILLUMINATED, 4-LAMP, 0.75 SQUARE, 7 AMPERES,
AND LOW LEVEL ELECTROMAGNETIC INTERFERENCE SHIELDED, SUNLIGHT READABLE
This specification sheet is approved for use by all Departments and Agencies of the Department of Defense.
The requirements for acquiring the switches described herein shall consist of this specification and MIL-PRF-22885.
MIL-PRF-22885/67 is inactive for new design and is no longer used, except for replacement purposes.
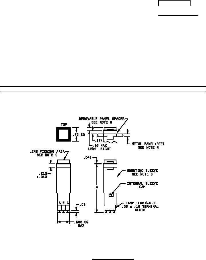
FIGURE 1. Design and construction.
AMSC N/A
FSC 5930