
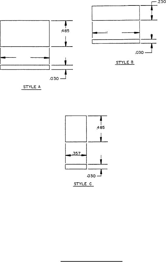
MIL-PRF-22885/59E
.740
.740
Inches
mm
0.76
.030
5.84
.230
9.07
.357
12.32
.485
18.80
.740
NOTES:
1. Dimensions are in inches.
2. Metric equivalents are given for general information only.
3. Unless otherwise specified, the tolerance is ±.010 (0.25 mm).
4. For clarification of style see table I.
5. For part number and color see table II.
FIGURE 2. Display screen, color filter, spacer.
2