
INCH-POUND
MIL-PRF-22885/56H
1 November 2006
SUPERSEDING
MIL-PRF-22885/56G
1 March 2001
PERFORMANCE SPECIFICATION SHEET
SWITCH, PUSH BUTTON, ILLUMINATED, 2PDT, 4PDT,
AND INDICATOR ASSEMBLIES, 4-LAMP, SOLID MOUNTING
This specification sheet is approved for use by all
Departments and Agencies of the Department of Defense.
The requirements for acquiring the product described herein shall consist of this specification sheet
and MIL-PRF-22885.
Inches
mm
.035
.89
.04
1.02
.055
1.40
.060
1.52
.070
1.78
.090
2.29
.188
4.78
.21
5.33
.24
6.10
.36
9.14
.684
17.37
.690
17.53
.781
19.84
.800
20.32
2.36
59.94
2.65
67.31
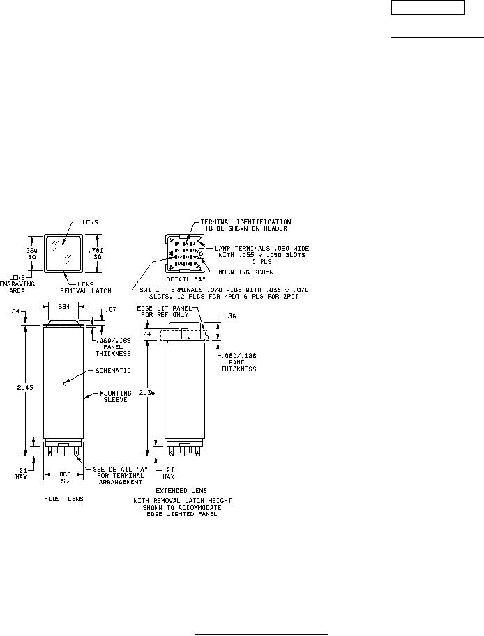
NOTES:
1. Dimensions are in inches.
2. Metric equivalents are given for general information only.
3. Unless otherwise specified, tolerances are ±.015 (.038) for three place decimals and ±.03 (.76 mm)
for two place decimals.
4. On 2 PDT switches, terminals are deleted in positions 8 thru 13.
5. Circuit schematic shall be marked on housing (see figure 3).
FIGURE 1. Pushbutton switch and indicator.
AMSC N/A
FSC 5930
For Parts Inquires call Parts Hangar, Inc (727) 493-0744
© Copyright 2015 Integrated Publishing, Inc.
A Service Disabled Veteran Owned Small Business