
INCH POUND
MIL-PRF-22885/16F
1 November 2006
SUPERSEDING
MIL-PRF-22885/16E
1 March 2001
PERFORMANCE SPECIFICATION SHEET
SWITCH, PUSH BUTTON, ILLUMINATED
4-LAMP, CLIP MOUNTED, LIGHT MODULE FOR
This specification sheet is approved for use by all
Departments and Agencies of the Department of Defense.
The requirements for acquiring the product described herein shall consist of this specification sheet
and MIL-PRF-22885.
MIL-PRF-22885/12
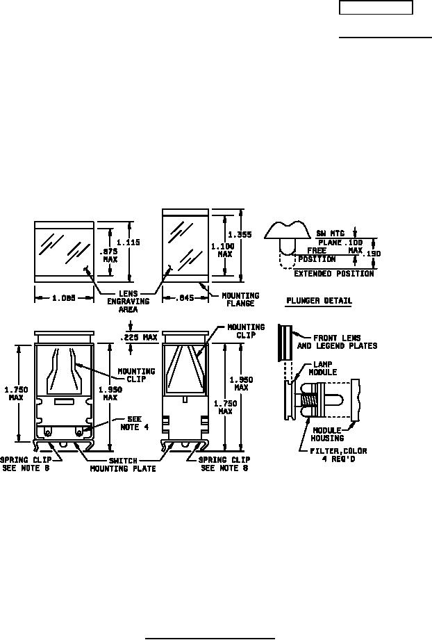
Inches
mm
Inches
mm
.100
2.54
1.085
27.56
.190
4.83
1.100
27.94
.225
5.72
1.115
28.32
NOTES:
.845
21.46
1.355
34.42
1. Dimensions are in inches.
.875
22.23
1.950
49.53
2. Unless otherwise specified, tolerance is ±.016 (0.41 mm).
3. The design of the terminals is optional. Terminals must accept #20 AWG wire.
4. Terminals shall be permanently identified with letters as shown in table II.
5. Metric equivalents (to the nearest .01 mm) are given for general
information only.
6. Lamp circuit schematic shall be marked on module housing as shown in table II.
7 Switch clip design optional-must interface with MIL-PRF-22885/11 switch modules.
FIGURE 1. Switch or light modules, 4 lamp.
AMSC N/A
FSC 5930
For Parts Inquires call Parts Hangar, Inc (727) 493-0744
© Copyright 2015 Integrated Publishing, Inc.
A Service Disabled Veteran Owned Small Business