
MIL-PRF-22885/111B
Legend details and display screen colors are not defined by the PIN. These details are specified by user's
acquisition documents in accordance with the acquisition requirements for category II switches, see section
6 of MIL-PRF-22885. For the convenience of users, an extension to the PIN may be utilized on the
acquisition document to define the legend details and colors. The method of constructing this extension is
illustrated below. The extension is for convenience only, and is not a part of the PIN.
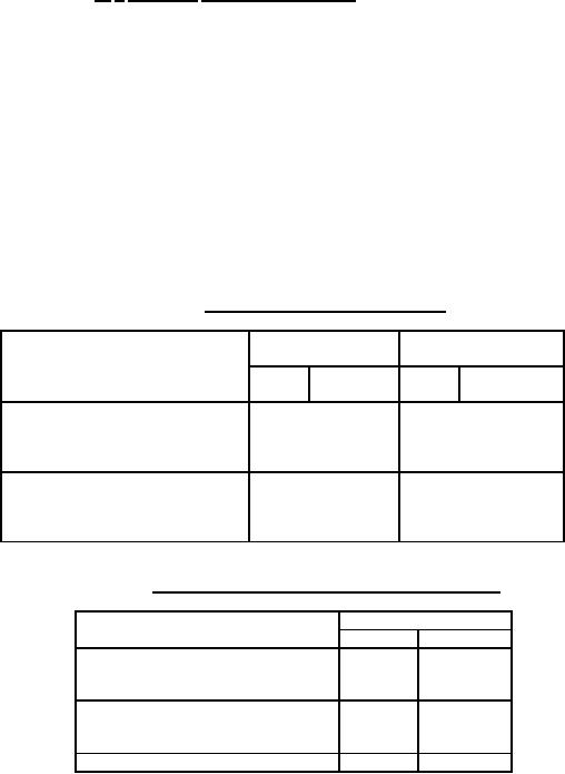
___ PIN
|
|
___ Acquisition document details for pushbutton legend
|
| and display. Callouts must be in the sequence shown.
|
|
______|________
|______________________________
M22885/111E244G
22 4 AY RD XX (TURBINE; HEAT) (HI)
| |
|
|
| |
|
|___ Legends for display screen areas 1, 2,
| |
|
and 3 respectively. Legends for each
| |
|
area enclosed by parentheses. Multiple
| |
|
legend lines separated by semi-colon.
| |
|
| |
|_____ Color code for display screen areas 1, 2, and 3
| |
respectively. See tables I and II for color
| |
selection. When any of these areas are not
| |
applicable, insert XX in that space.
| |
| |___ Type of legend display illumination and contrast.
|
See table IX for selection.
|
|___ Legend character size. See table VIII for selection.
TABLE III. Codes for housing enclosure design.
Without EMI/RFI
With EMI/RFI
shielding
shielding
Enclosure design
75 G
Hi-impact
75 G
Hi-impact
shock
shock
shock
shock
With solder terminations:
Unsealed
A
---
J
---
Dripproof
B
---
K
---
Watertight/splashproof
C
S
L
W
With CTS terminations:
Unsealed
E
---
N
---
Dripproof
F
---
O
---
Watertight/splashproof
G
U
P
Y
TABLE IV. Codes for switch circuit, action, and contact material.
Contact material
Switch circuit
Silver
Gold
Momentary action:
Single pole, double throw (SPDT)
1
5
Double pole, double throw (DPDT)
2
6
Alternate action:
Single pole, double throw (SPDT)
3
7
Double pole, double throw (DPDT)
4
8
Indicator:
---
0
14
For Parts Inquires call Parts Hangar, Inc (727) 493-0744
© Copyright 2015 Integrated Publishing, Inc.
A Service Disabled Veteran Owned Small Business