
MIL-DTL-9395/8E
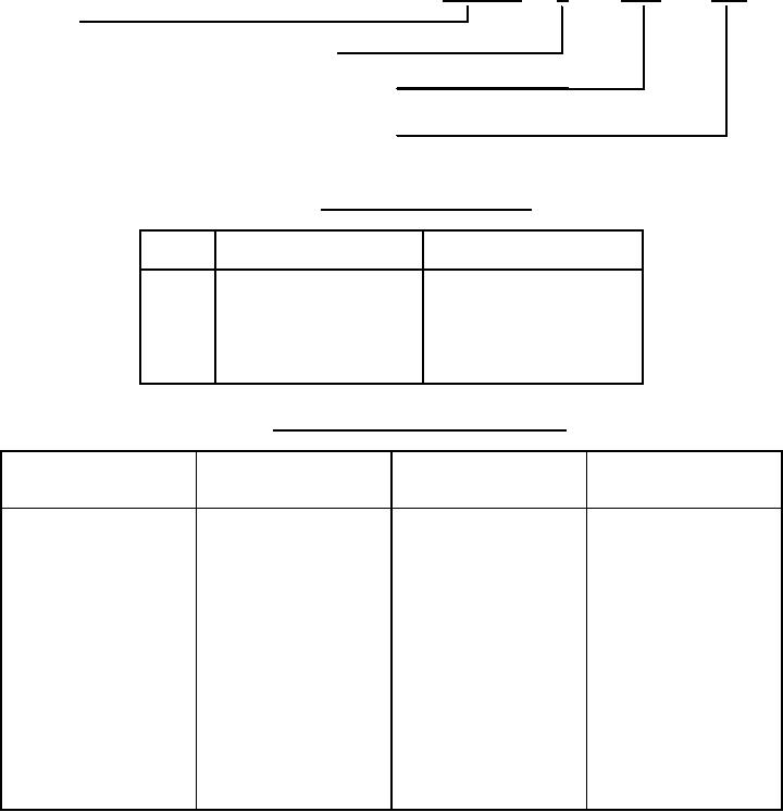
PART NUMBER: The part number shall consist of the prefix "M9395/08-" followed in sequence by
appropriate characters from tables I, II, III, IV, II, III, and IV to describe high and low pressure settings and
tolerances. Part number M9395/08-AWAQHNK identifies a pressure switch with pressure setting modes
on "AT" at both high and low settings (a high pressure setting of 40 ±2 lbf/in2 and a low pressure setting of
15 ±1 lbf/in2).
EXAMPLE:
M9395/08-
A
WAQ
HNK
PREFIX.
PRESSURE SETTING MODE from table I.
HIGH-PRESSURE SETTING = Coarse pressure, fine
pressure, and tolerance from tables II, III, and IV.
LOW-PRESSURE SETTING - Coarse pressure fine
pressure, and tolerance from tables II, III, and IV.
TABLE I. Code for switch setting mode.
High pressure
Low pressure
Code
setting mode
setting mode
A
AT
AT
B
AT
Differential with respect to
higher pressure setting
Differential with respect to
AT
C
lower pressure setting
TABLE II. Code character for coarse pressure setting.
Code character for
Code character for
2
Pressure setting (lbf/in2)
pressure setting
Pressure setting (lbf/in )
pressure setting
(coarse) within 2 lbf/in2
(coarse) within 2 lbf/in2
A
0
S
32
B
2
T
34
C
4
U
36
D
6
V
38
E
8
W
40
F
10
X
42
G
12
Y
44
H
14
Z
46
J
16
3
48
K
18
4
50
L
20
5
52
M
22
6
54
N
24
7
56
P
26
8
58
Q
28
9
60
R
30
3