
MIL-DTL-9395/43C
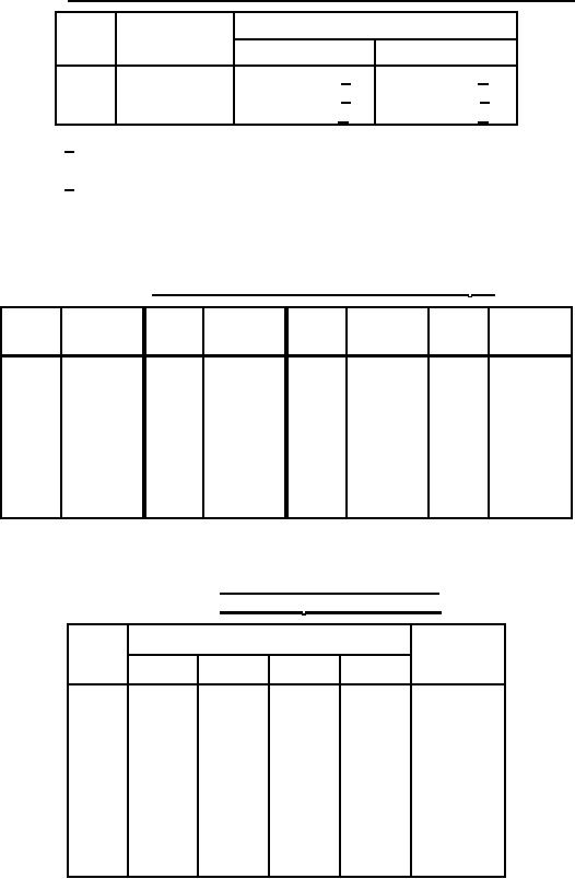
TABLE I. Codes for combinations of configurations and pressure setting modes.
Configuration
Pressure setting mode
1
High setting
Low setting
Code
A
At (or max) 1/
At (or min) 1/
Code
B
At (or max) 1/
Differential 2/
Code
C
Differential 2/
At (or min) 1/
1/ Setting values are designated by characters from tables II
and III.
2/ Setting values are designated by characters from table
IV.
TABLE II. Codes for pressure settings to within 100 lbf/in2.
Pressure
Pressure
Pressure
Pressure
Code
Code
Code
Code
(lbf/in2)
(lbf/in2)
(lbf/in2)
(lbf/in2)
A
100
J
900
S
1700
1
2500
B
200
K
1000
T
1800
2
2600
C
300
L
1100
U
1900
3
2700
D
400
M
1200
V
2000
4
2800
E
500
N
1300
W
2100
5
2900
F
600
P
1400
X
2200
6
3000
G
700
Q
1500
Y
2300
H
800
R
1600
Z
2400
TABLE III. Codes for pressure settings to
within 25 lbf/in2 and tolerances.
Unit
Tolerance
(lbf/in2)
0
+25
+50
+75
±25
Code
A
B
C
D
±50
Code
E
F
G
H
±75
Code
J
K
L
M
±100
Code
N
P
Q
R
±150
Code
S
T
U
V
±200
Code
W
X
Y
Z
±300
Code
1
2
3
4
±400
Code
5
6
7
8
Code
9
0
+
-
Min or Max
4
For Parts Inquires call Parts Hangar, Inc (727) 493-0744
© Copyright 2015 Integrated Publishing, Inc.
A Service Disabled Veteran Owned Small Business