
INCH-POUND
MIL-DTL-9395/38C
3 October 2006
SUPERSEDING
MIL-DTL-9395/38B
30 May 2001
DETAIL SPECIFICATION SHEET
SWITCHES, PRESSURE, (GAGE) TYPE II, LOW LEVEL TO 5 AMPERES
This specification is approved for use by all Departments and Agencies of the Department of Defense.
The requirements for acquiring the switches described herein shall consist of this document and MIL-
DTL-9395.
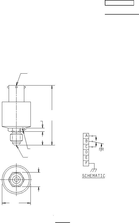
ELECTRICAL CONNECTOR PER MIIL-C-3898999
M L-DTL-399
HERMETICALLY SEALED AND INTERFACIAL
SEAL MATES WITH MS27467T11B98S
2.8
2.5
.12
MIN
.55 REF
.055 DIA
PRESSURE PORT
SAE-A656E5E04
MS33S4394
.438-20 UNJF-3A
.688
HEX
1.50
WEIGHT: NOT TO EXCEED .5 POUNDS
DIA
MAX
CONFIGURATION 1
FIGURE 1. Switches.
AMSC N/A
FSC 5930
For Parts Inquires call Parts Hangar, Inc (727) 493-0744
© Copyright 2015 Integrated Publishing, Inc.
A Service Disabled Veteran Owned Small Business