
INCH-POUND
MIL-DTL-28827/1C
26 January 2011
SUPERSEDING
MIL-DTL-28827/1B
4 October 2004
DETAIL SPECIFICATION SHEET
SWITCH, THERMOSTATIC (VOLATILE LIQUID), HERMETIC SEALED,
SINGLE POLE DOUBLE THROW (SPDT), MEDIUM RESPONSE TIME
Inactive for new design after 8 March 1999.
This specification is approved for use by all Departments and Agencies of the Department of Defense.
The complete requirements for acquiring the switches described herein
shall consist of this specification and the latest issue of MIL-DTL-28827.
NOTES:
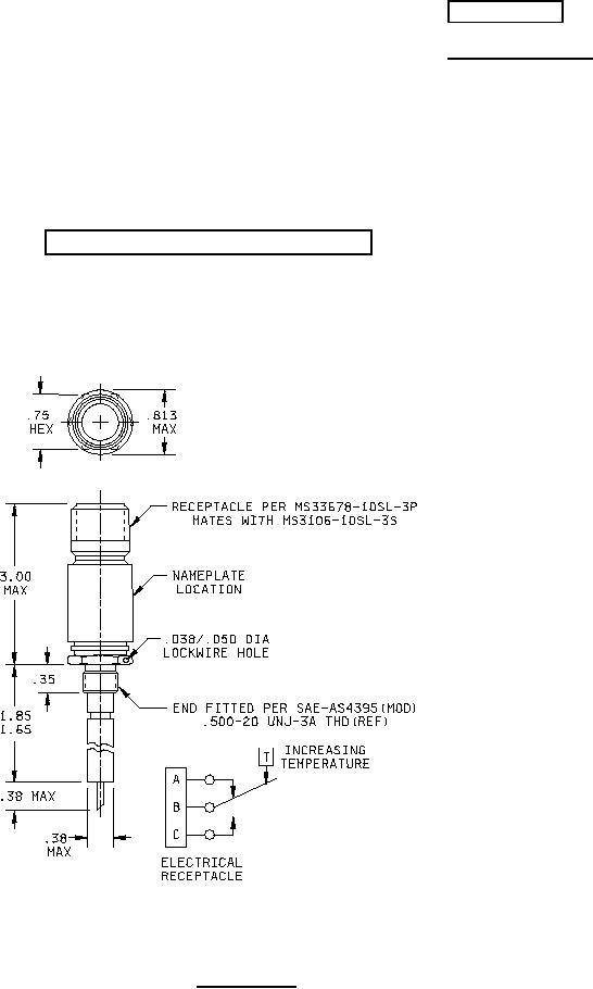
1. Dimensions are in inches.
2. Unless otherwise specified tolerances are ±.005.
FIGURE 1. Configuration 1.
AMSC N/A
FSC 5930
For Parts Inquires call Parts Hangar, Inc (727) 493-0744
© Copyright 2015 Integrated Publishing, Inc.
A Service Disabled Veteran Owned Small Business